Skip to main content
Skip to footer
HOME
SERVICES
ABOUT
PROJECTS
TEAM
CONTACT
HOME
SERVICES
ABOUT
PROJECTS
TEAM
CONTACT
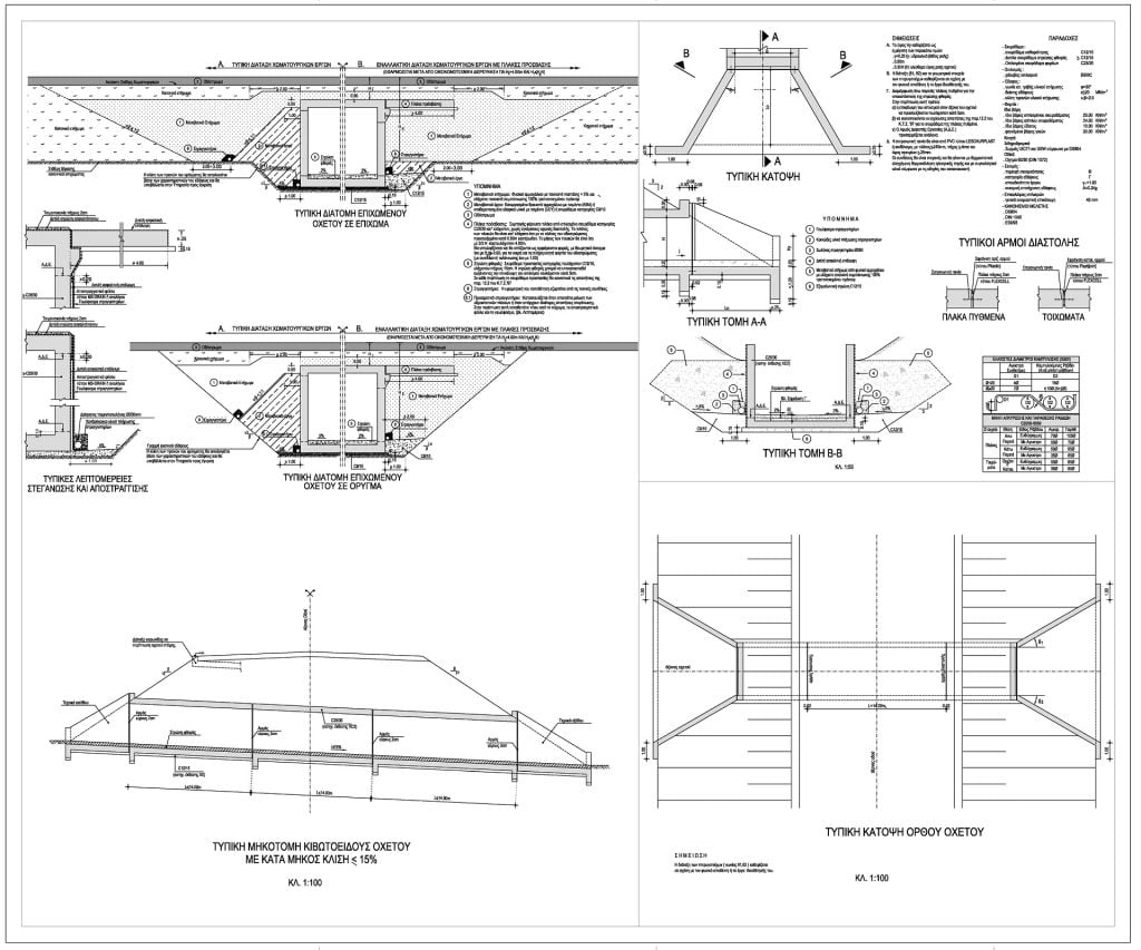
Paiania Water Stream Hydraulic Study
Region : Paiania, Attiki
Previous Project
Kea Roundabout Study
Next Project
Glyfa Water Stream Hydrology & Hydraulic Study